• 730.000 €
  • 273
  • 9
  • 3

This detached house for sale in Campertogno is a spacious home with a large garden and panoramic views, ideal for those seeking tranquility and contact with nature.
The property comprises:
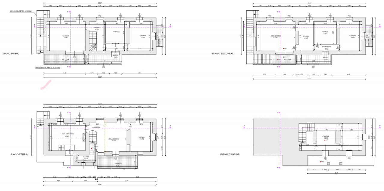
- Basement with a basement and two rooms with direct access to the garden;
- Ground floor with a kitchen with access to a covered terrace, a dining room/study, a living room with a vaulted stone ceiling and direct access to the garden, and a bathroom with shower;
- First floor with two bedrooms, a hallway, a bathroom with shower, a living room/study with a covered terrace;
- Second floor with two bedrooms, a hallway, a bathroom with shower, a living room with an open-plan kitchen, and a covered terrace.

The property has been recently renovated: independent pellet-fired underfloor heating, triple-glazed windows, a 7kW photovoltaic system with battery, and new electrical and plumbing systems. Some finishes need to be finished.
The second floor enjoys complete independence from the rest of the house thanks to external access, offering the possibility of managing the second floor completely independently (e.g., seasonal rentals).
The garden is 3,700 square meters, and the property also includes 1,500 square meters of woodland.
Imagine waking up every morning surrounded by the majesty of the Alps, with a breathtaking view of the mountains rising on the horizon. This detached house in Campertogno is more than just a home, but a true retreat where modern comforts blend perfectly with pristine nature.
The exterior of the house is equally charming, with a large garden extending towards the mountain panorama. Here you can enjoy sunny days, host barbecues, or simply relax surrounded by nature. Campertogno, nestled in the heart of Valsesia, is a hidden gem where life flows slowly and peacefully. This picturesque village offers an unparalleled quality of life, with outdoor activities ranging from summer hikes to winter sports. Living here means having nature as your daily companion, without sacrificing essential comforts and amenities.
Don't miss the opportunity to transform this home into a personal sanctuary, a place to recharge and create unforgettable memories. Contact us today to arrange a viewing and discover for yourself everything this stunning property has to offer.


Additional information

Reference

  • 5-CAMCAM

environments

  • Sqm garden 3700
  • Home heating
  • Floor heating
  • Fireplace
  • Photovoltaic panels
  • State maintenance

levels

    Levels
  • Ground floor
  • First floor
  • Semi basement floor

comfort

  • Home heating
  • Floor heating
  • Fireplace
  • Photovoltaic panels
  • Entrance
  • Allowed pets
2
2
A1
110
n/d

Map


Video

Virtual

DO YOU WANT TO KNOW MORE?

Click here and fill in the form or contact us at the telephone or via mail: we will give you all the information that you need.

READ LATEST NEWS

03/12/2025

Meglio un’agenzia o il fai-da-te? Pro e contro per vendere casa senza stress

READ ARTICLE

HAVE YOU FOUND THE HOUSE YOU ARE INTERESTED IN?

Fill in the form to be contacted by one of our consultants.
We have been waiting for you!